The home is situated on the award-winning Woodland View site, located to the rear of Stratton Strawless Hall, a quiet and established park home community surrounded by countryside. Residents benefit from ample communal parking, a bowling green, and an on-site social club, helping create a friendly and sociable environment.
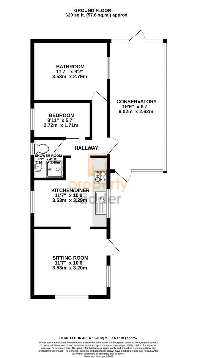
The accommodation comprises an entrance hall, kitchen/diner, sitting room, two bedrooms, shower room, and a generous conservatory which provides additional living space and a pleasant area to relax while enjoying the outlook over the plot.
The property further benefits from oil fired central heating and is conveniently located close to the communal car park.
The location offers an excellent balance of peaceful countryside living with convenient access to amenities. The property is well positioned for Norwich City Centre, while also being within easy reach of the Norfolk Broads, making it ideal for those who enjoy outdoor pursuits and exploring the surrounding natural beauty.
A bus stop located at Stratton Strawless Hall on the main road provides convenient public transport connections to Norwich, Aylsham and surrounding villages.
AGENTS NOTE Please note the owner owns the home but not the land on which it sits.
Pitch fee: £181.07 per month (includes water and drainage)
Garage rental: Approx. £30pcm (subject to availability - waiting list may apply)
Pets: No dogs permitted, up to two cats allowed
No age restrictions
Site rules apply
Speak to us for further information regarding your rights under the Park Homes Act 2013.
DIRECTIONS From Norwich proceed along the A140 towards Aylsham and Cromer. Upon entering the village of Stratton Strawless, turn right into Woodland View. Proceed to the end of the road and turn right. A large communal car park will be found on the right hand side - please park here and walk to the property.
LOCATION Stratton Strawless is a small and attractive village situated approximately 9 miles north of Norwich along the A140 Cromer Road. The village features a church and village hall and was historically the home of Robert Marsham, the founder of Phenology.
Further amenities, including schools, shops and everyday services, can be found in the nearby market town of Aylsham and the village of Buxton, both offering good transport links to Norwich City Centre.
The location is particularly well placed for access to the Norfolk Broads National Park, as well as the North Norfolk coastline, both of which are within comfortable driving distance.
IMPORTANT NOTICE Energy Performance Certificate: Not Required
Council Tax Band: A - Broadland District Council
Property Ladder, their clients and any joint agents give notice that:
1. They are not authorised to make or give any representations or warranties in relation to the property either here or elsewhere, either on their own behalf or on behalf of their client or otherwise. They assume no responsibility for any statement that may be made in these particulars. These particulars do not form part of any offer or contract and must not be relied upon as statements or representations of fact.
2. Any areas, measurements or distances are approximate. The text, photographs and plans are for guidance only and are not necessarily comprehensive. It should not be assumed that the property has all necessary planning, building regulation or other consents and Property Ladder have not tested any services, equipment or facilities. Purchasers must satisfy themselves by inspection or otherwise.
3. These published details should not be considered to be accurate and all information, including but not limited to lease details, boundary information and restrictive covenants have been provided by the sellers. Property Ladder have not physically seen the lease nor the deeds.
Key Features
- No Onward Chain - ideal for a straightforward purchase
- One of the largest plots on the Woodland View development
- Open field views to the rear creating a peaceful rural outlook
- Well-presented 12ft x 40ft Omar Waveney park home (1994)
- Two bedrooms plus a generous conservatory providing additional living space
- Oil fired central heating for year-round comfort
- Award-winning Woodland View site with bowling green and social club
- Conveniently located close to the communal car parkBus stop at Stratton Strawless Hall with links to
- Bus stop at Stratton Strawless Hall with links to Norwich and surrounding villages
- Excellent access to Norwich City Centre and the Norfolk Broads
IMPORTANT NOTICE
Property Ladder, their clients and any joint agents give notice that:
1. They are not authorised to make or give any representations or warranties in relation to the property either here or elsewhere, either on their own behalf or on behalf of their client or otherwise. They assume no responsibility for any statement that may be made in these particulars. These particulars do not form part of any offer or contract and must not be relied upon as statements or representations of fact.
2. Any areas, measurements or distances are approximate. The text, photographs and plans are for guidance only and are not necessarily comprehensive. It should not be assumed that the property has all necessary planning, building regulation or other consents and Property Ladder have not tested any services, equipment or facilities. Purchasers must satisfy themselves by inspection or otherwise.
3. These published details should not be considered to be accurate and all information, including but not limited to lease details, boundary information and restrictive covenants have been provided by the sellers. Property Ladder have not physically seen the lease nor the deeds.



