A Rare Opportunity to Acquire a Unique Historic Building with Planning Permission.
This charming former schoolhouse, originally believed to date back to 1849, offers a truly distinctive chance to create a bespoke home steeped in history. The building retains many period features characteristic of Tudor-style architecture, including elegant drip window mouldings, a beautifully arched porch doorway, and a decorated date stone proudly displayed on the north gable. Although the school closed its doors in 1913, the structure has been neglected and is currently used for storage.
Set well back from the road down a peaceful Loke, the property enjoys a wonderfully rural setting, providing a tranquil retreat while still benefiting from easy access to nearby amenities.
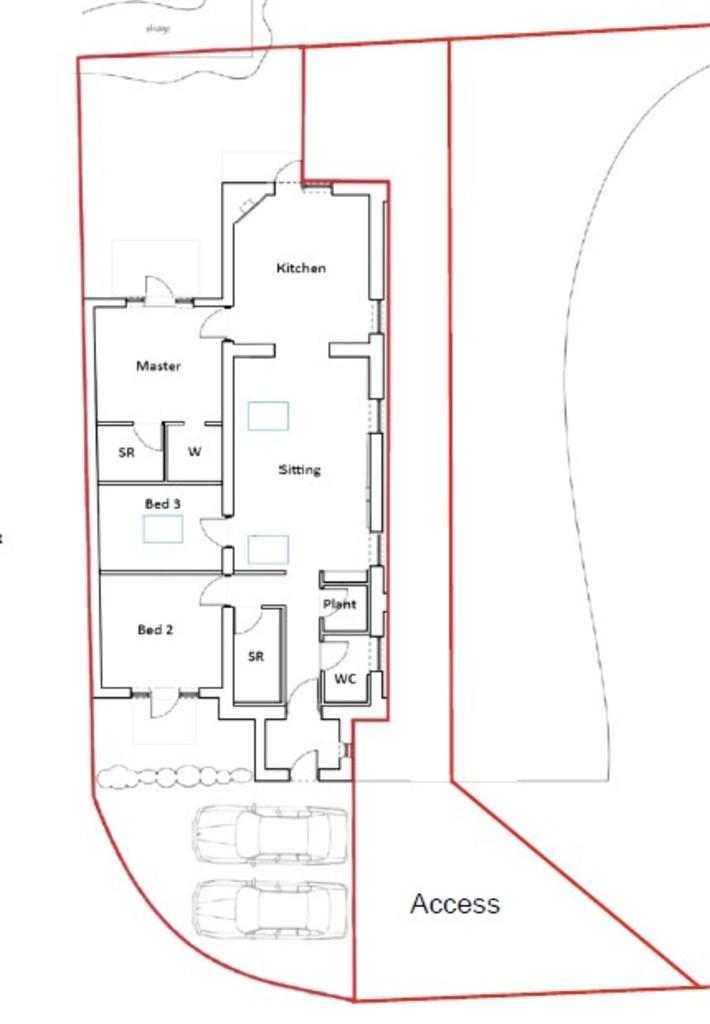
Importantly, full planning permission has been granted to convert this historic building into a stunning detached single-storey dwelling. The proposed layout includes two spacious bedrooms, two bathrooms, a comfortable lounge area, a dining space, and a modern kitchen - perfectly blending character and contemporary living.
This is a unique opportunity for those seeking to restore and personalize a beautiful period property in a quiet rural location. Early viewing is highly recommended to appreciate the full potential this building offers.
AGENTS NOTE AGENTS NOTE: Interested parties are advised to carry out their own independent investigations and enquiries regarding the property, its planning permissions, boundaries, and any other matters that may affect their purchase. The seller and agent make no warranties or representations beyond those stated in writing. The property is subject to a Community Infrastructure Levy. IMAGES ARE AN ARTIST'S IMPRESSION
Property Ladder, their clients and any joint agents give notice that:
1. They are not authorised to make or give any representations or warranties in relation to the property either here or elsewhere, either on their own behalf or on behalf of their client or otherwise. They assume no responsibility for any statement that may be made in these particulars. These particulars do not form part of any offer or contract and must not be relied upon as statements or representations of fact.
2. Any areas, measurements or distances are approximate. The text, photographs and plans are for guidance only and are not necessarily comprehensive. It should not be assumed that the property has all necessary planning, building regulation or other consents and Property Ladder have not tested any services, equipment or facilities. Purchasers must satisfy themselves by inspection or otherwise.
3. These published details should not be considered to be accurate and all information, including but not limited to lease details, boundary information and restrictive covenants have been provided by the sellers. Property Ladder have not physically seen the lease nor the deeds.
Key Features
- IMAGES ARE AN ARTIST'S IMPRESSION AND DO NOT REPRESENT CURRENT CONDITION
- Unique character including arched porch doorway
- Full planning permission granted for conversion to a detached single-storey dwelling
- Proposed layout: 3 bedrooms, 2 bathrooms
- Currently used for storage, ready for transformation
- Set well back from North Walsham Road down a peaceful Loke
- Beautifully rural and tranquil location with countryside views
- Charming date stone displayed on the north gable
- Ideal for those seeking a bespoke home with historic character
- Rare opportunity to create a unique residence blending period features with modern living
IMPORTANT NOTICE
Property Ladder, their clients and any joint agents give notice that:
1. They are not authorised to make or give any representations or warranties in relation to the property either here or elsewhere, either on their own behalf or on behalf of their client or otherwise. They assume no responsibility for any statement that may be made in these particulars. These particulars do not form part of any offer or contract and must not be relied upon as statements or representations of fact.
2. Any areas, measurements or distances are approximate. The text, photographs and plans are for guidance only and are not necessarily comprehensive. It should not be assumed that the property has all necessary planning, building regulation or other consents and Property Ladder have not tested any services, equipment or facilities. Purchasers must satisfy themselves by inspection or otherwise.
3. These published details should not be considered to be accurate and all information, including but not limited to lease details, boundary information and restrictive covenants have been provided by the sellers. Property Ladder have not physically seen the lease nor the deeds.



