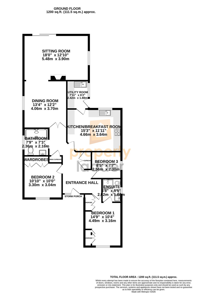
The property is approached via a driveway providing ample off-road parking and access to the detached double garage, positioned to the rear of the plot. Inside, the accommodation begins with a welcoming and generously proportioned entrance hall, which immediately sets the tone for the space on offer. Practical storage cupboards provide excellent everyday convenience.
The living accommodation includes two reception rooms, offering flexibility for both relaxation and entertaining. These bright and comfortable spaces provide plenty of room for family living and social gatherings.
The modern fitted kitchen is well arranged with a range of units and work surfaces and is complemented by a separate utility room, keeping laundry and additional storage neatly tucked away.
There are three well-proportioned bedrooms, with the principal bedroom benefiting from its own en-suite shower room. A family bathroom serves the remaining bedrooms, creating a practical layout suited to a range of buyers.
OUTSIDE Outside, the property truly shines. The large mature rear garden offers a wonderful private space to enjoy, with plenty of room for gardening, entertaining or simply relaxing. Combined with the generous plot, ample parking and the detached double garage, the outside space is a real feature of this home.
With gas central heating, double glazing and no onward chain, this spacious bungalow represents a fantastic opportunity in one of Norwich's most popular village locations.
LOCATION Spixworth is a highly sought-after village located just to the north of Norwich, offering a fantastic balance of village lifestyle and city convenience. The village is well served by local amenities including two schools, a village shop, doctor's surgery, dentist, pharmacy, hairdressers, takeaways, a pub and a social club.
There are also excellent transport links into Norwich city centre, making it a popular choice for commuters. Surrounded by countryside yet with everyday essentials close at hand, Spixworth remains one of the area's most desirable village locations.
IMPORTANT INFORMATION Broadland District Council
Band D
Energy Performance Certificate: TBC
Services Connected
Mains Gas, Mains Water, Mains Electricity, Mains Drains
Property Ladder, their clients and any joint agents give notice that:
1. They are not authorised to make or give any representations or warranties in relation to the property either here or elsewhere, either on their own behalf or on behalf of their client or otherwise. They assume no responsibility for any statement that may be made in these particulars. These particulars do not form part of any offer or contract and must not be relied upon as statements or representations of fact.
2. Any areas, measurements or distances are approximate. The text, photographs and plans are for guidance only and are not necessarily comprehensive. It should not be assumed that the property has all necessary planning, building regulation or other consents and Property Ladder have not tested any services, equipment or facilities. Purchasers must satisfy themselves by inspection or otherwise.
3. These published details should not be considered to be accurate and all information, including but not limited to lease details, boundary information and restrictive covenants have been provided by the sellers. Property Ladder have not physically seen the lease nor the deeds.
Key Features
- Spacious detached bungalow on a generous plot
- Three well-proportioned bedrooms
- Principal bedroom with en-suite shower room
- Two versatile reception rooms
- Modern fitted kitchen with separate utility room
- Family bathroom
- Ample driveway parking
- Detached double garage positioned to the rear
- Large mature rear garden offering excellent outdoor space
- No onward chain for a straightforward move
IMPORTANT NOTICE
Property Ladder, their clients and any joint agents give notice that:
1. They are not authorised to make or give any representations or warranties in relation to the property either here or elsewhere, either on their own behalf or on behalf of their client or otherwise. They assume no responsibility for any statement that may be made in these particulars. These particulars do not form part of any offer or contract and must not be relied upon as statements or representations of fact.
2. Any areas, measurements or distances are approximate. The text, photographs and plans are for guidance only and are not necessarily comprehensive. It should not be assumed that the property has all necessary planning, building regulation or other consents and Property Ladder have not tested any services, equipment or facilities. Purchasers must satisfy themselves by inspection or otherwise.
3. These published details should not be considered to be accurate and all information, including but not limited to lease details, boundary information and restrictive covenants have been provided by the sellers. Property Ladder have not physically seen the lease nor the deeds.



